Morien Residences
פרויקט מגורים בוטיק חדש בקאטו פולמידיה, לימסול
Morien Residences הוא פרויקט מגורים חדש ואיכותי, הממוקם בעיריית קאטו פולמידיה, בין שדרות ספירו קיפריאנו לאומוניה – מיקום אסטרטגי המציע שילוב אידאלי בין שקט סביבתי, נגישות גבוהה ואיכות חיים עירונית.
הפרויקט נהנה מגישה מהירה לכביש המהיר ולכל השירותים החיוניים של היום־יום: בתי ספר פרטיים, בתי חולים, מרכזי קניות, שווקים מקומיים ושירותים קהילתיים. מדובר באזור משפחתי ומבוקש, הקרוב למרכז ההיסטורי של לימסול, הנמצא בתנופת פיתוח וצמיחה מתמדת.

מגורים ירוקים עם תכנון אדריכלי מוקפד
Morien Residences ממוקם בסמוך לשטח ירוק פתוח, ומציע סביבת מגורים רגועה ונעימה. תכנון הבניין הותאם לגאומטריה הטבעית של המגרש, וכולל קווים נקיים, מרפסות מרווחות ונוף פתוח לאזור הירוק.
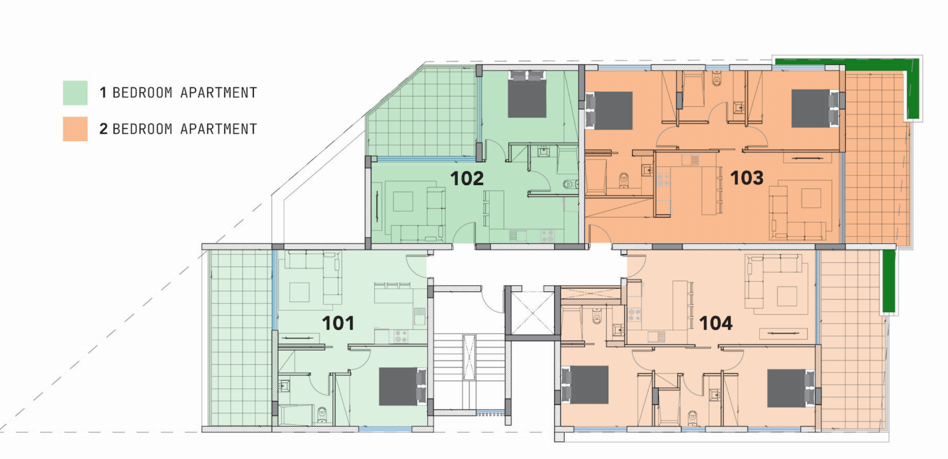
הפרויקט כולל 10 דירות בלבד, בחלוקה מאוזנת:
-
4 דירות עם חדר שינה אחד
-
4 דירות עם שני חדרי שינה
-
2 פנטהאוזים יוקרתיים עם שלושה חדרי שינה
השילוב בין מספר דירות מצומצם לתכנון חכם יוצר תחושת פרטיות, קהילה איכותית וחוויית מגורים בסטנדרט גבוה.

מתאים למשפחות, מקצוענים ומשקיעים
Morien Residences הוא בחירה מצוינת:
-
למשפחות המחפשות סביבה שקטה ובטוחה לילדים
-
לאנשי מקצוע הזקוקים לנגישות גבוהה ולקרבה לצירי תנועה מרכזיים
-
למשקיעים המחפשים נכס איכותי באזור עם פוטנציאל השבחה ארוך טווח
המיקום משלב אורח חיים ים־תיכוני רגוע עם ערך נדל"ני יציב ומתפתח.
פרטי הפרויקט בקצרה
-
סוג נכס: דירות מגורים
-
מיקום: קאטו פולמידיה, לימסול
-
מספר דירות: 10
-
שטח פנימי: החל מ־51 מ"ר
-
מחירים: החל מ־230,000 אירו + מע"מ
-
דירוג אנרגטי: A+
-
סטטוס: על הנייר (Off Plan)
-
אכלוס צפוי: רבעון 4, שנת 2027
View this post on Instagram 
Morien Residences מציע שילוב אידאלי בין איכות חיים, מיקום חכם והזדמנות השקעה – פרויקט בוטיק שמתחבר באופן טבעי לאורח החיים של לימסול.
| סוג הנכס | חדרים | גודל | מחיר |
|---|---|---|---|
| דירה | 1 | 51 מ"ר | 230,000 € |
פרויקטים נוספים של Tor Properties
Riga Fereou Str., Mesa Geitonia, Limassol
- 3 חדרים
- 157 מ"ר
Neapolis, Limassol
- 2-3 חדרים
- 84 מ"ר
Neapolis, Limassol
- 2 חדרים
- 124-164 מ"ר






